Create Your First Project
Start adding your projects to your portfolio. Click on "Manage Projects" to get started
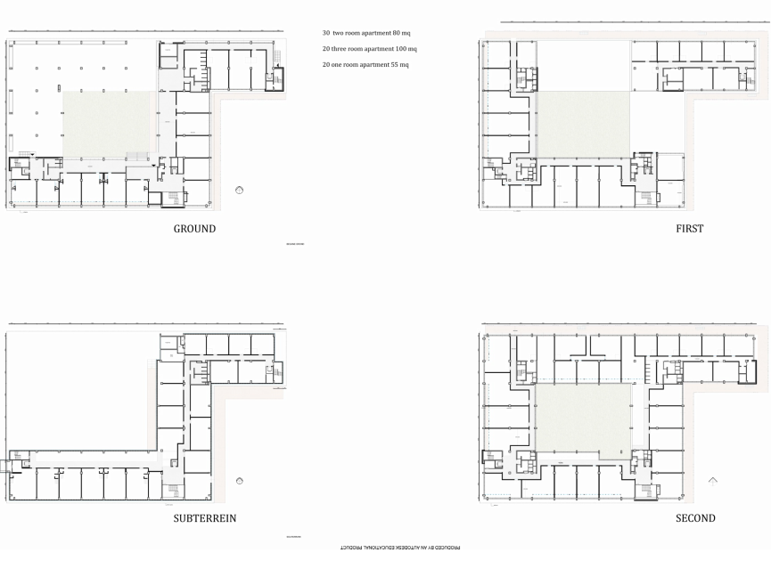
Amsterdam Topping zuid
Luogo
Amsterdam
Data
2018
Ruolo
- Progettazione preliminare e definitiva dell’intervento
- Studio dettagliato delle soluzioni architettoniche e distributive
- Integrazione di criteri di sostenibilità ambientale ed efficientamento energetico
- Elaborazione di layout abitativi flessibili per mix funzionale
- Analisi tecnico-economica e supporto agli sviluppatori
Rigenerazione architettonica di una palazzina esistente con 60 unità abitative miste, tra social housing e mercato libero, destinate alla vendita e all’affitto. Il progetto ha previsto soluzioni innovative per l'efficienza energetica e il comfort abitativo, con tetti verdi, ottimizzazione degli spazi e attenzione ai dettagli architettonici.



























